send mail to support@abhimanu.com mentioning your email id and mobileno registered with us! if details not recieved
Resend Opt after 60 Sec.
By Loging in you agree to Terms of Services and Privacy Policy
Claim your free MCQ
Please specify
Sorry for the inconvenience but we’re performing some maintenance at the moment. Website can be slow during this phase..
Please verify your mobile number
Login not allowed, Please logout from existing browser
Please update your name
Subscribe to Notifications
Stay updated with the latest Current affairs and other important updates regarding video Lectures, Test Schedules, live sessions etc..
Your Free user account at abhipedia has been created.
Remember, success is a journey, not a destination. Stay motivated and keep moving forward!
Refer & Earn
Enquire Now
My Abhipedia Earning
Kindly Login to view your earning
Support
Type your modal answer and submitt for approval
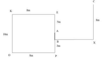
Direction: Study the following information carefully and ans the questions given below. Point E is 5m to the North of point A. Point K is 8m to the West of point E. Point B is 3m to the North of point P, which is 8m to the East of point O. Point C is 8m to the North of point X, which is 10 to the East of point B. Point O is 10m to the South of point K.
What is the distance between points A and B?
3m
2m
4m
5m
Cannot be determined
AB = EP - (AE + BP)
= EP - (5 + 3) = EP - 8m
Now, KO || EP implies that KO = EP = 10m
Hence, AB = 10 - 8 = 2m.
By: Munesh Kumari ProfileResourcesReport error
Access to prime resources
New Courses